 
								Nắp Hố Ga Thoát Nước | Bán Nắp Hố Ga | Vận Chuyển Tận Nơi Miễn Phí
Tình trạng: Hàng có sẵn
Xuất Xứ: Minh Hải
Bảo hành: 02 năm
Vận chuyển: Miễn phí vận chuyển
Công Ty CPĐT Xây Dựng & CN Minh Hải là một trong những đơn vị có bề dày kinh nghiệm trong lĩnh vực sản xuất, phân phối các sản phẩm từ Gang, Thép, Composite như: Nắp hố ga thoát nước,… Các sản phẩm của Minh Hải đa dạng về mẫu mã, màu sắc, kích thước, ngoài ra Công Ty nhận gia công nắp hố ga,… theo yêu cầu của khách hàng. Để được tư vấn báo giá, mua nắp hố ga quý khách vui lòng LH: 0395964009 – NVKD Linh.
NẮP HỐ GA THOÁT NƯỚC LÀ GÌ?
Nắp hố ga thoát nước được cấu thành từ vật liệu kim loại như gang và thép hoặc vật liệu composite, được dùng làm nắp đậy hố ga với mục đích giảm lưu lượng dòng chảy của nước; ngăn không cho rác thải rơi xuống khu vực; bảo vệ sự an toàn của động vật và con người. Thường có hình vuông và hình tròn, nắp hố ga sẽ được thiết kế thêm khóa để chống lại tình trạng mất trộm.

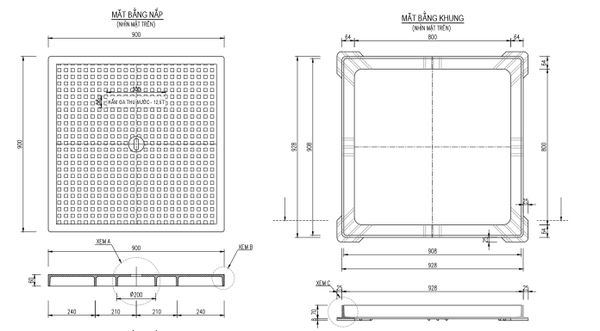
Bản vẽ nắp hố ga Minh Hải

nắp 850x850mm.

nắp 900x900mm
Nắp hố ga thoát nước Minh Hải.
CÁC LOẠI KÍCH CỠ THÔNG DỤNG CỦA NẮP HỐ GA THOÁT NƯỚC:
| STT | KÍCH | THƯỚC(mm) | TẢI TRỌNG (kN) | 
| 
 | A x A | H | 
 | 
| 1 | 770x770 | 75 | 125-400 | 
| 2 | 850x850 | 75-100 | 125-400 | 
| 3 | 900x900 | 75x100 | 125-400 | 
| 4 | 1000x1000 | 100 | 125-600 | 
| 5 | 1120x1120 | 75x125 | 125-600 | 
          
 
Một số hình ảnh nắp hố ga thoát nước từ xưởng sản xuất Minh Hải
Tùy theo tải thiết kế và nơi lắp đặt, sản phẩm Nắp hố ga thoát nước được chia làm 4 cấp: A,B,C,D.
Nhóm1: Cấp A, Tải trọng >= 15kN~ 1,5 tấn hoặc 75kN~7,5 tấn
Chỉ sử dụng cho những nơi dành riêng cho người đi bộ hoặc xe đạp.
Nhóm2: Cấp B, Tải trọng >= 125kN~ 12,5 tấn
Sử dụng trên vỉa hè, vùng dành cho người đi bộ, xe máy, bãi đỗ xe con.
Nhóm3: Cấp C, Tải trọng >= 250kN ~ 25 tấn.
Sử dụng lắp lề đường, cách vỉa hè ra phía đường tối đa 0.5m và ra phía người đi bộ 0.2m.
Nhóm 4: Cấp D, Tải trọng>= 400kN~ 40 tấn.
Sử dụng trên lòng đường, bãi đỗ xe dành cho mọi phương tiện giao thông đường bộ.
Một số hình ảnh nắp hố ga thoát nước từ xưởng sản xuất Minh Hải
TẠI SAO NÊN CHỌN MUA NẮP HỐ GA, SONG CHẮN RÁC MINH HẢI:
- Nắp hố ga thoát nước được sản xuất theo tiêu chuẩn ISO9001-2008 và tiêu chuẩn BS EN 124:2015.
- Sản xuất mẫu mã, kích thước theo yêu cầu của quý khách hàng.
- In logo, hoa văn theo thiết kế của công trình.
- Phục vụ 24/7, tư vấn tại chân công trình.
- Đảm bảo tiến độ giao hàng.
- Với phương châm “Chất Lượng Hàng Đầu – Cầu Nối Thành Công”, Minh Hải luôn tự tin là 1 trong các đơn vị uy tín chất lượng hàng đầu mà quý khách hàng yên tâm gửi gắm niềm tin.
ƯU ĐÃI GIẢM GIÁ, BẢO HÀNH CHO KHÁCH HÀNG TRÊN TOÀN QUỐC:
Với quý khách hàng đã từng đặt mua sản phẩm của Công Ty Minh Hải, các đơn hàng tiếp theo của quý khách sẽ được nhận nhiều ưu đãi đặc biệt như giảm 10 – 20% với các đơn hàng lớn. Ngoài ra chính sách giao hàng miễn phí 100% đến tại chân công trình, bảo hành 24 tháng kể từ ngày xuất xưởng không phát sinh thêm bất cứ chi phí nào khác luôn được áp dụng cho tất cả các đơn đặt hàng.
Tham khảo báo giá nắp hố ga:【 Tải Báo Giá Nắp Hố Ga Gang】Update Mới Nhất 2021 - Nắp hố ga Minh Hải

Minh Hải xin gửi lời cảm ơn chân thành đến quý khách hàng đã tin tưởng và đồng hành cùng Công Ty trong suốt thời gian qua! Kính chúc quý khách hàng luôn “ An Khang – Thịnh Vượng” !
Quý khách có nhu cầu mua nắp bể cáp gang cầu hoặc đăng ký làm Đại lý xin vui lòng liên hệ:
Mrs Linh: 0395964009 Hoặc Hotline: 0974.236.786
Công ty CP Đầu tư Xây dựng & Công Nghệ Minh Hải
Trụ sở tại HN: Số 9 - Ngõ 2/107 đường Nguyễn Văn Cừ - P.Bồ Đề - Q.Long Biên - TP. Hà Nội
Chi nhánh Hồ Chí Minh: Số 246 đường 14 - P. Phước Long A - TP. Thủ Đức - Hồ Chí Minh
Bước 2: Click và sản phẩm muốn mua, màn hình hiển thị ra pop up với các lựa chọn sau
Nếu bạn muốn tiếp tục mua hàng: Bấm vào phần tiếp tục mua hàng để lựa chọn thêm sản phẩm vào giỏ hàng
Nếu bạn muốn xem giỏ hàng để cập nhật sản phẩm: Bấm vào xem giỏ hàng
Nếu bạn muốn đặt hàng và thanh toán cho sản phẩm này vui lòng bấm vào: Đặt hàng và thanh toán
Bước 3: Lựa chọn thông tin tài khoản thanh toán
Nếu bạn đã có tài khoản vui lòng nhập thông tin tên đăng nhập là email và mật khẩu vào mục đã có tài khoản trên hệ thống
Nếu bạn chưa có tài khoản và muốn đăng ký tài khoản vui lòng điền các thông tin cá nhân để tiếp tục đăng ký tài khoản. Khi có tài khoản bạn sẽ dễ dàng theo dõi được đơn hàng của mình
Nếu bạn muốn mua hàng mà không cần tài khoản vui lòng nhấp chuột vào mục đặt hàng không cần tài khoản
Bước 4: Điền các thông tin của bạn để nhận đơn hàng, lựa chọn hình thức thanh toán và vận chuyển cho đơn hàng của mình
Bước 5: Xem lại thông tin đặt hàng, điền chú thích và gửi đơn hàng
Sau khi nhận được đơn hàng bạn gửi chúng tôi sẽ liên hệ bằng cách gọi điện lại để xác nhận lại đơn hàng và địa chỉ của bạn.
Trân trọng cảm ơn.
1. Chúng tôi sẽ được thực hiện và chuyển phát dựa trên mẫu khách hàng đã chọn. Trường hợp không có đúng sản phẩm Quý khách yêu cầu chúng tôi sẽ gọi điện xác nhận gửi sản phẩm tương tự thay thế.
2. Thời gian chuyển phát tiêu chuẩn cho một đơn hàng là 12 giờ kể từ lúc đặt hàng. Chuyển phát sản phẩm đến các khu vực nội thành thành phố trên toàn quốc từ 4 giờ kể từ khi nhận hàng, chuyển phát ngay trong ngày đến các vùng lân cận (bán kính từ 10km – 50km).
3. Các đơn hàng gửi đi quốc tế: không đảm bảo thời gian được chính xác như yêu cầu, không đảm bảo thời gian nếu thời điểm chuyển phát trùng với các ngày lễ, tết và chủ nhật tại khu vực nơi đến.
4. Trường hợp không liên lạc được với người nhận, người nhận đi vắng:
- Nếu chưa rõ địa chỉ chúng tôi sẽ lưu lại trong vòng 6 tiếng và liên lạc lại với người nhận, trong trường hợp ko liên lạc được đơn hàng sẽ bị hủy và không được hoàn lại thanh toán.
- Nếu địa chỉ là công ty, văn phòng, nhà ở… Chúng tôi sẽ gửi đồng nghiệp, người thân nhận hộ và ký xác nhận
- Để tại một nơi an toàn người nhận dễ nhận thấy tại nhà, văn phòng, công ty… Trường hợp này không có ký nhận.
5. Trường hợp người nhận không nhận đơn hàng:
- Chúng tôi sẽ hủy bỏ đơn hàng. Trường hợp này sẽ không được hoàn trả thanh toán.
6. Trường hợp không đúng địa chỉ, thay đổi địa chỉ:
- Không đúng địa chỉ: trường hợp sai địa chỉ chúng tôi sẽ lưu lại 6 tiếng và liên lạc với người gửi và người nhận để thỏa thuận về địa điểm, thời gian, nếu địa chỉ mới không quá 3km sẽ phát miễn phí. Trường hợp địa chỉ mới xa hơn 3km sẽ tính thêm phí theo quy định chuyển phát.
7. Trường hợp không tồn tại người nhận tại địa chỉ yêu cầu: đơn hàng sẽ được hủy và không được hoàn lại thanh toán.
8. Chúng tôi không vận chuyển sản phẩm đến các địa chỉ trên tàu hỏa, máy bay, tàu thủy, khu vực nguy hiểm, các khu vực cấm…
Có thể bạn quan tâm
TRIỆU TIẾN HOÀNG | 14/ 12/ 2022
TRIỆU TIẾN HOÀNG | 12/ 12/ 2022
TRIỆU TIẾN HOÀNG | 10/ 12/ 2022
TRIỆU TIẾN HOÀNG | 08/ 12/ 2022
TRIỆU TIẾN HOÀNG | 06/ 12/ 2022
TRIỆU TIẾN HOÀNG | 04/ 12/ 2022
TRIỆU TIẾN HOÀNG | 02/ 12/ 2022
TRIỆU TIẾN HOÀNG | 24/ 11/ 2022
TRIỆU TIẾN HOÀNG | 23/ 11/ 2022
TRIỆU TIẾN HOÀNG | 28/ 10/ 2022
TRIỆU TIẾN HOÀNG | 27/ 10/ 2022
TRIỆU TIẾN HOÀNG | 25/ 10/ 2022
TRIỆU TIẾN HOÀNG | 19/ 10/ 2022
TRIỆU TIẾN HOÀNG | 16/ 10/ 2022
TRIỆU TIẾN HOÀNG | 14/ 10/ 2022
TRIỆU TIẾN HOÀNG | 12/ 10/ 2022
TRIỆU TIẾN HOÀNG | 11/ 10/ 2022
TRIỆU TIẾN HOÀNG | 01/ 10/ 2022
TRIỆU TIẾN HOÀNG | 29/ 09/ 2022
TRIỆU TIẾN HOÀNG | 27/ 09/ 2022
TRIỆU TIẾN HOÀNG | 25/ 09/ 2022
TRIỆU TIẾN HOÀNG | 23/ 09/ 2022
TRIỆU TIẾN HOÀNG | 20/ 09/ 2022
TRIỆU TIẾN HOÀNG | 18/ 09/ 2022
TRIỆU TIẾN HOÀNG | 16/ 09/ 2022
TRIỆU TIẾN HOÀNG | 14/ 09/ 2022
TRIỆU TIẾN HOÀNG | 12/ 09/ 2022
TRIỆU TIẾN HOÀNG | 23/ 08/ 2022
TRIỆU TIẾN HOÀNG | 18/ 08/ 2022
TRIỆU TIẾN HOÀNG | 09/ 08/ 2022
TRIỆU TIẾN HOÀNG | 01/ 08/ 2022
TRIỆU TIẾN HOÀNG | 29/ 07/ 2022
TRIỆU TIẾN HOÀNG | 27/ 07/ 2022
TRIỆU TIẾN HOÀNG | 25/ 07/ 2022
TRIỆU TIẾN HOÀNG | 23/ 07/ 2022
TRIỆU TIẾN HOÀNG | 21/ 07/ 2022
TRIỆU TIẾN HOÀNG | 19/ 07/ 2022
TRIỆU TIẾN HOÀNG | 17/ 07/ 2022
TRIỆU TIẾN HOÀNG | 15/ 07/ 2022
TRIỆU TIẾN HOÀNG | 14/ 07/ 2022
TRIỆU TIẾN HOÀNG | 13/ 07/ 2022
TRIỆU TIẾN HOÀNG | 09/ 07/ 2022
TRIỆU TIẾN HOÀNG | 06/ 07/ 2022
TRIỆU TIẾN HOÀNG | 04/ 07/ 2022
TRIỆU TIẾN HOÀNG | 03/ 07/ 2022
TRIỆU TIẾN HOÀNG | 01/ 07/ 2022
TRIỆU TIẾN HOÀNG | 26/ 06/ 2022
TRIỆU TIẾN HOÀNG | 24/ 06/ 2022
TRIỆU TIẾN HOÀNG | 22/ 06/ 2022
TRIỆU TIẾN HOÀNG | 20/ 06/ 2022
 
					 
  
					



